ГОСТ 23342-2012 Изделия архитектурно-строительные из природного камня
ГОСТ 23342-2012
Группа Ж33
МЕЖГОСУДАРСТВЕННЫЙ СТАНДАРТ
ИЗДЕЛИЯ АРХИТЕКТУРНО-СТРОИТЕЛЬНЫЕ ИЗ ПРИРОДНОГО КАМНЯ
Технические условия
Architectural-construction goods of natural stone. Specifications
МКС 91.100.15
Дата введения 2014-01-01
Предисловие
Цели, основные принципы и основной порядок работ по межгосударственной стандартизации установлены ГОСТ 1.0-92 "Межгосударственная система стандартизации. Основные положения" и ГОСТ 1.2-2009 "Межгосударственная система стандартизации. Стандарты межгосударственные, правила и рекомендации по межгосударственной стандартизации. Правила разработки, принятия, применения, обновления и отмены"
Сведения о стандарте
1 РАЗРАБОТАН Федеральным государственным унитарным предприятием "Научно-исследовательский и проектно-изыскательский институт по проблемам добычи, транспорта и переработки минерального сырья в промышленности строительных материалов" (ФГУП "ВНИПИИстромсырье")
2 ВНЕСЕН Техническим комитетом ТК 465 "Строительство"
3 ПРИНЯТ Межгосударственной научно-технической комиссией по стандартизации, техническому нормированию и оценке соответствия в строительстве (МНТКС) (протокол от 18 декабря 2012 г. N 41, приложение Е)
За принятие проголосовали:
|
Краткое наименование страны по МК (ИСО 3166) 004-97 |
Код страны по |
Сокращенное наименование национального органа государственного управления строительством |
|
Армения |
AM |
Министерство градостроительства |
|
Киргизия |
KG |
Госстрой |
|
Молдова |
MD |
Министерство строительства и регионального развития |
|
Россия |
RU |
Министерство регионального развития |
|
Таджикистан |
TJ |
Агентство по строительству и архитектуре при Правительстве |
|
Узбекистан |
UZ |
Госархитектстрой |
4 Приказом Федерального агентства по техническому регулированию и метрологии от 27 декабря 2012 г. N 2019-ст межгосударственный стандарт ГОСТ 23342-2012 введен в действие в качестве национального стандарта Российской Федерации с 1 января 2014 г.
5 ВЗАМЕН ГОСТ 23342-91
Информация об изменениях к настоящему стандарту публикуется в ежегодном информационном указателе "Национальные стандарты", а текст изменений и поправок - в ежемесячном информационном указателе "Национальные стандарты". В случае пересмотра (замены) или отмены настоящего стандарта соответствующее уведомление будет опубликовано в ежемесячном информационном указателе "Национальные стандарты". Соответствующая информация, уведомление и тексты размещаются также в информационной системе общего пользования - на официальном сайте Федерального агентства по техническому регулированию и метрологии в сети Интернет
1 Область применения
Настоящий стандарт распространяется на архитектурно-строительные изделия, изготовляемые из природного камня и предназначенные для формирования системы декора и защиты от негативных внешних воздействий фасадов и интерьеров зданий и сооружений, элементов городского благоустройства, садово-парковой архитектуры и монументального искусства.
Настоящий стандарт не распространяется на сложнопрофильные изделия (капители, детали фонтанов, каминов, скульптуру и т.п.).
2 Нормативные ссылки
В настоящем стандарте использованы нормативные ссылки на следующие межгосударственные стандарты:
ГОСТ 427-75 Линейки измерительные металлические. Технические условия
ГОСТ 3749-77 Угольники поверочные 90°. Технические условия
ГОСТ 7502-98 Рулетки измерительные металлические. Технические условия
ГОСТ 8026-92 Линейки поверочные. Технические условия
ГОСТ 9479-2011 Блоки из горных пород для производства облицовочных, архитектурно-строительных, мемориальных и других изделий. Технические условия
ГОСТ 14192-96 Маркировка грузов
ГОСТ 19300-86 Средства измерений шероховатости поверхности профильным методом. Профилографы-профилометры контактные. Типы и основные параметры
ГОСТ 25706-83 Лупы. Типы, основные параметры. Общие технические требования
Примечание - При пользовании настоящим стандартом целесообразно проверить действие ссылочных стандартов в информационной системе общего пользования - на официальном сайте Федерального агентства по техническому регулированию и метрологии в сети Интернет или по ежегодному информационному указателю "Национальные стандарты", который опубликован по состоянию на 1 января текущего года, и по выпускам ежемесячного информационного указателя "Национальные стандарты" за текущий год. Если ссылочный стандарт заменен (изменен), то при пользовании настоящим стандартом следует руководствоваться заменяющим (измененным) стандартом. Если ссылочный стандарт отменен без замены, то положение, в котором дана ссылка на него, применяется в части, не затрагивающей эту ссылку.
3 Термины и определения
В настоящем стандарте применены следующие термины с соответствующими определениями:
3.1 антаблемент: Деталь верхней части сооружения, опирающейся на колонны. Состоит из архитрава, фриза и карниза.
3.2 арка: Криволинейное, полукруглое или стрельчатое перекрытие проемов в стене или пролетов между двумя опорами (колоннами, столбами и т.п.).
3.3 архитрав: Прямолинейная несущая балка, расположенная непосредственно на капителях колонн.
3.4 база колонны: Основание колонны.
3.5 балюстрада: Невысокое ограждение лестниц, балконов, террас и т.п., состоящее из балясин, опирающихся на основание и соединенных сверху перилами.
3.6 балясина: Основной элемент балюстрады в виде гладких или фактурных столбиков, предназначенных для поддержания перил.
3.7 ваза: Архитектурное изделие в виде вазы или ее рельефного изображения.
3.8 валик: Архитектурный элемент со скругленным торцом, выступающим за общую плоскость облицовки.
3.9 выкружка: Архитектурный элемент криволинейно-вогнутого профиля в окружности.
3.10 гусек обратный: Архитектурный элемент с профилем, составленным из двух дуг окружностей, образующих букву "s".
3.11 гусек прямой: Архитектурный элемент с профилем, составленным из двух дуг окружностей, образующих рукописную букву "г".
3.12 каблучок: Архитектурный элемент с профилем, представляющим собой сочетание двух сопряженных кривых (вогнутой и выпуклой), при этом выпуклая кривая имеет больший вынос по сравнению с аналогичной дугой гуська.
3.13 камень замковый: Верхняя трапециевидная деталь в вершине арки или свода.
3.14 камень кордонный: Профильное погонажное изделие, установленное на цокольной плите.
3.15 камень рустовой: Прямоугольная деталь с груботесанной выпуклой лицевой поверхностью с обрамлением гладким кантом (лентой) с четырех или двух сторон.
3.16 капельник (слезник): Продольный желоб или выступ с нижней стороны архитектурной детали, предотвращающий попадание на фасад дождевой воды, стекающей по нижней поверхности детали.
3.17 капитель: Верхняя, наиболее обработанная часть колонны или пилястры, выражающая архитектурный стиль сооружения в целом.
3.18 карниз: Выступающая профильная архитектурная деталь антаблемента или стены.
3.19 колонна: Архитектурное изделие круглого или прямоугольного сечения, несущая часть стоечно-балочной конструкции. Представляет часть классической системы архитектурной композиции - ордера. Основными элементами колонны являются база, ствол и капитель.
3.20 наличник: Декоративное обрамление оконного проема, отличающееся большим разнообразием: от простой прямоугольной рамы, выступающей из плоскости стены, до сложных декоративных обрамлений, состоящих из карниза, двух вертикальных тяг (колонок) на профилированной опоре и подоконника.
3.21 обломы архитектурные: Горизонтально расположенные архитектурные элементы, различающиеся по своему поперечному сечению (профилю).
3.22 парапет: Невысокая сплошная каменная стенка, установленная вдоль террасы, крыши, набережной и т.п.
3.23 пилон: Массивный столб обычно прямоугольного сечения, являющийся опорой перекрытия или оформляющий въезд на территорию парка.
3.24 плинт: Архитектурный элемент в виде горизонтальной прямоугольной плиты, на которую устанавливают колонну, пьедестал, статую и т.п.
3.25 плинтус: Погонажная деталь в виде прямоугольного бруса, являющаяся частью окантовки, установленной в месте сопряжения пола и стены.
3.26 плита накрывочная: Прямоплоскостная толстомерная деталь, часто со скругленным торцом, устанавливаемая на парапетную плиту.
3.27 плита парапетная: Прямоплоскостная толстомерная деталь, являющаяся составной частью парапета.
3.28 плита подоконная: Нижняя горизонтальная деталь наличника.
3.29 плита цокольная: Прямоплоскостная толстомерная деталь, являющаяся составной частью цоколя.
3.30 портал: Архитектурно оформленный проем, являющийся обычно входом в здание.
3.31 рустовка: Рельефная кладка или облицовка стен здания рустовыми камнями.
3.32 цоколь: Лежащая на фундаменте и выступающая нижняя часть наружной стены здания, сооружения, памятника.
4 Технические требования
4.1 Архитектурно-строительные изделия должны изготовляться в соответствии с требованиями настоящего стандарта, по технологическим регламентам и рабочим чертежам, утвержденным предприятием-изготовителем.
4.2 Архитектурно-строительные изделия в зависимости от формы, размеров и назначения подразделяют на прямоплоскостные толстомерные изделия, объемно-профильные, погонажные и в форме тел вращения.
4.2.1 Прямоплоскостные толстомерные изделия подразделяют на плиты накрывочные, парапетные, цокольные и камни рустовые и замковые.
4.2.2 Прямоплоскостные толстомерные изделия должны изготовляться в пиленом и колотом исполнениях. К пиленым относят изделия, получаемые выпиливанием, к колотым - выкалыванием. Допускается изготовление колотых изделий с двумя-четырьмя пилеными гранями.
4.2.3 Основные типы рустовых и замковых камней приведены на рисунках 1, 2.

Рисунок 1 - Рустовые камни

Рисунок 2 - Замковые камни
Номинальные размеры прямоплоскостных толстомерных изделий в зависимости от вида приведены в таблице 1.
Таблица 1 - Номинальные размеры прямоплоскостных толстомерных изделий
|
Вид изделия |
Номинальные размеры изделий, мм |
||
|
|
Длина L |
Ширина (высота) B |
Толщина H |
|
Накрывочные плиты: |
|
|
|
|
- пиленые |
400-200 |
200-500 |
40-80 |
|
- колотые |
500-800 |
200-500 |
100-120 |
|
Парапетные плиты: |
|
|
|
|
- пиленые |
400-1500 |
500-200 |
80-200 |
|
- колотые |
400-1500 |
500-800 |
200-300 |
|
Цокольные плиты: |
|
|
|
|
- пиленые |
600-1500 |
350-1200 |
50-80 |
|
- колотые |
600-1500 |
350-1200 |
100-300 |
|
Рустовые камни: |
|
|
|
|
- пиленые |
220-600 |
200-1000 |
60-80 |
|
- колотые |
220-600 |
200-1000 |
80-120 |
|
Замковые камни: |
|
|
|
|
- пиленые |
L = 110-220 |
190-270 |
60-110 |
|
- колотые |
L = 110-220 |
190-270 |
100-240 |
Допускается по согласованию с потребителем изготовление изделий с другими номинальными размерами.
4.2.4 Предельные отклонения от номинальных размеров прямоплоскостных толстомерных пиленых изделий не должны превышать, мм:
- по длине и ширине:
|
до 600 мм |
±1, |
|
свыше 600 мм |
±2; |
- по толщине:
|
свыше 40 до 80 мм |
±2, |
|
свыше 80 мм |
±3. |
4.2.5 Предельные отклонения от номинальных размеров прямоплоскостных толстомерных колотых изделий не должны превышать, мм:
- по длине и ширине:
|
для тонких фактур (см. 4.6) |
±3, |
|
для грубых фактур (см. 4.6) |
±10; |
- по толщине:
|
для тонких фактур (см. 4.6) |
±3, |
|
для грубых фактур (см. 4.6) |
±10. |
4.2.6 Накрывочные, парапетные, цокольные плиты и рустовые камни должны изготовляться прямоугольной или квадратной формы, замковые камни - трапецеидальной формы. По согласованию изготовителя с потребителем допускается изготовление криволинейных изделий по заказанной спецификации, а также изделий со скругленными торцами, с фаской шириной до 5 мм, с крепежными отверстиями и пазами.
4.2.7 Отклонения от прямого угла пиленых изделий на 1 м длины граней не должны превышать ±1 мм.
4.2.8 Отклонения от прямого угла колотых изделий на 1 м длины граней в зависимости от фактуры лицевой поверхности не должны превышать, мм:
|
- для тонких фактур (см. 4.6) |
±2; |
|
- для грубых фактур (см. 4.6) |
±3. |
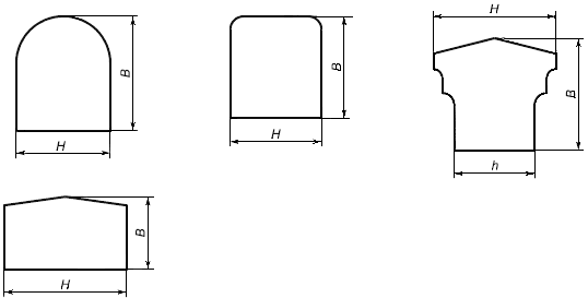
4.3 Объемно-профильные изделия подразделяют на карнизы, кордонные камни, цельные ступени, наружные массивные подоконники.
4.3.1 Объемные профильные изделия должны изготовляться в пиленом (фрезерованном) исполнении. Сечения изделий выбирают в соответствии с основными типами архитектурных обломов (плинт, валик, прямая и обратная выкружка, прямой и обратный каблучок, прямой и обратный гусек и т.п.).
Примеры типовых поперечных профилей объемных профильных изделий приведены на рисунках 3-6, номинальные размеры - в таблице 2.

Рисунок 3 - Карнизы

Рисунок 4 - Кордонные камни

Рисунок 5 - Цельные ступени

Рисунок 6 - Наружные массивные подоконники
Таблица 2 - Номинальные размеры объемно-профильных изделий
|
Вид изделия |
Номинальный размер изделий, мм |
||||
|
|
Длина L |
Ширина (высота) B |
Толщина H |
Прочие размеры, указанные на рисунках 1-4 |
|
|
|
|
|
|
b |
h |
|
Карнизы |
300-1000 |
400-800 |
110-550 |
30-70 |
70-460 |
|
Кордонные камни |
300-1000 |
120-400 |
60-400 |
20-60 |
20-250 |
|
Цельные ступени |
400-1200 |
120-200 |
200-400 |
90-170 |
170-320 |
|
Наружные массивные подоконники |
400-1200 |
80-200 |
200-450 |
40-65 |
100-300 |
Допускается по согласованию с потребителем изготовление изделий других номинальных размеров и типов профилей. У объемно-профильных и погонажных изделий допускается скругление острых кромок или выполнение на них фасок шириной 5 мм.
4.3.2 Предельные отклонения от номинальных размеров объемно-профильных изделий не должны превышать, мм:
- для изделий с тонкой фактурой (см. 4.6):
|
по длине и ширине (высоте) |
±2, |
|
по толщине |
±20; |
- для изделий с грубой фактурой (см. 4.6):
|
по длине и ширине (высоте) |
±5, |
|
по толщине |
±20 (для скальной фактуры ±30). |
4.3.3 Отклонение от прямого угла объемно-профильных изделий на 1 м длины поверхности не должно превышать ±1 мм.
4.3.4 Просвет под шаблоном профилей объемно-профильных изделий не должен превышать ±2 мм.
4.3.5 На лицевой поверхности целых ступеней с полированной, лощеной и шлифованной фактурами допускается выполнять противоскользящие полосы или борозды-канавки, если они не ухудшают внешний вид детали.
4.4 Погонажные изделия подразделяют на плинтусы, основания, перила балюстрад и детали наличников.
4.4.1 Погонажные изделия изготовляют в пиленом (фрезерованном) исполнении. Сечения изделий выбирают в соответствии с основными типами архитектурных обломов (плинт, валик, прямая и обратная выкружка, прямой и обратный каблучок, прямой и обратный гусек и т.п.). Основные размеры типовых поперечных профилей погонажных изделий приведены в таблице 3, их примеры - на рисунках 7-10.
Таблица 3 - Номинальные размеры погонажных изделий
|
Вид изделия |
Номинальный размер изделий, мм |
||||
|
|
Длина L |
Ширина (высота) B |
Толщина H |
Прочие размеры, указанные на рисунках 1-4 |
|
|
|
|
|
|
b |
h |
|
Плинтусы |
400-1200 |
30-300 |
60-120 |
30-70 |
10-80 |
|
Основания балюстрад |
400-1200 |
80-200 |
100-250 |
20-60 |
8-180 |
|
Перила (поручни) балюстрад |
400-1200 |
80-150 |
100-250 |
90-170 |
20-60 |
|
Детали наличников (тяги) |
400-800 |
60-150 |
60-150 |
40-65 |
20-60 |

Рисунок 7 - Напольные плинтусы

Рисунок 8 - Основания балюстрад

Рисунок 9 - Перила (поручни) балюстрад

Рисунок 10 - Детали наличников (тяги)
Допускается по согласованию с потребителем изготовление изделий других номинальных размеров и профилей.
4.4.2 Предельные отклонения от номинальных размеров погонажных изделий не должны превышать, мм:
|
- по ширине и толщине |
±1; |
|
- по длине |
±2. |
4.4.3 Отклонение от прямого угла на 1 м длины поверхности погонажных изделий не должно превышать ±1 мм.
4.4.4 Просвет под шаблоном профилей погонажных изделий не должен превышать ±2 мм.
4.4.5 По согласованию с потребителем допускается изготовление изделий с крепежными пазами.
4.5 Изделия в форме тел вращения подразделяют на колонны (стволы и базы), балясины, вазы, шары.
4.5.1 Изделия в форме тел вращения изготовляют фактурами тонкими и пиленой.
4.5.2 Номинальные размеры изделий в форме тел вращения приведены в таблице 4, основные типы балясин и ваз - на рисунках 11,12.
Таблица 4 - Номинальные размеры изделий в форме тел вращения
|
Вид изделия |
Длина (высота), мм |
Диаметр, мм |
|
Ствол колонны |
1500-12000 |
100-600 |
|
База колонны |
50-400 |
150-800 |
|
Балясины |
600-1600 |
100-300 |
|
Вазы |
300-1300 |
300-1000 |
|
Шары |
- |
250-1200 |

Рисунок 11 - Балясины

Рисунок 12 - Вазы
По согласованию с потребителем допускается изготовление изделий другой формы и других номинальных размеров.
4.5.3 Ствол колонны длиной (высотой) более 2000 мм допускается изготовлять составным.
4.5.4 Поверхность ствола колонны может быть гладкой или иметь вертикальные желобки - каннелюры.
4.5.5 Предельные отклонения от номинальных размеров изделий в форме тел вращения не должны превышать, мм:
|
- по длине (высоте) |
±2; |
|
- по диаметру (просвет под шаблоном) |
±2. |
4.5.6 У составных стволов колонн ширина швов между частями ствола (барабанами) не должна превышать 1 мм.
4.5.7 При длине (высоте) колонны более 4 м нижняя часть колонны может быть выполнена утолщенной диаметром, на 15%-20% и более превышающим номинальный диаметр колонны.
4.6 Архитектурно-строительные изделия могут иметь фактуры лицевой поверхности, приведенные в таблице 5.
Таблица 5 - Виды фактуры архитектурно-строительных изделий
|
Вид фактуры |
Характеристика фактуры |
Применение |
|
Полированная |
Поверхность с зеркальным блеском, полным выявлением цвета, рисунка и структуры камня, четким отображением окружающих предметов, без следов обработки предыдущих операций |
Изделия прямоплоскостные пиленые, объемно-профильные, погонажные, в форме тел вращения |
|
Лощеная |
Гладкая матовая поверхность, без следов обработки предыдущих операций, с полным выявлением рисунка камня, с высотой микрорельефа до 0,63 мкм |
То же |
|
Шлифованная |
Равномерно-шероховатая поверхность со следами обработки шлифовальным инструментом, с высотой микрорельефа до 630 мкм |
" |
|
Пиленая |
Неравномерно-шероховатая поверхность с высотой неровностей рельефа до 2,0 мм |
" |
|
Точечная |
Равномерно-шероховатая поверхность с высотой неровностей рельефа до 5 мм |
Изделия прямоплоскостные колотые и пиленые, объемно-профильные колотые и пиленые |
|
Бороздчатая (кованая) |
Неравномерно-шероховатая поверхность, образованная мелкими параллельными прерывистыми бороздками с высотой неровностей рельефа до 2 мм |
То же |
|
Бугристая |
Рельефная поверхность, с равномерным чередованием бугров и впадин, с высотой неровностей рельефа до 10 мм при расстоянии между соседними буграми 20-40 мм |
" |
|
Термообработанная |
Крупношероховатая поверхность со следами чешуйчатого шелушения и отслаивания лещадных частиц размером до 30 мм и высотой неровностей рельефа до 10 мм |
" |
|
Водоструйнообработанная ("аква") |
Матовая, равномерно-шероховатая поверхность с выявлением структуры, цвета и рисунка камня, с высотой неровностей рельефа до 5 мм |
Изделия прямоплоскостные колотые и пиленые, объемно-профильные колотые и пиленые |
|
"Скала" (скальная) |
Обколотая или расколотая поверхность с высотой неровностей рельефа от 50 до 200 мм, без следов инструмента |
Изделия прямоплоскостные колотые и пиленые: парапетные плиты, цокольные, рустовые и замковые камни |
|
Искусственного старения "антик" |
Равномерно шероховатая поверхность, подчеркивающая места более мягких прожилок углублением, а более твердые участки - плоскими сглаженными выпуклостями с высотой неровностей до 5 мм |
Изделия прямоплоскостные колотые и пиленые, объемно-профильные колотые и пиленые |
Полированные, лощеные и шлифованные фактуры относят к тонким фактурам, остальные - к грубым. Поверхности грубых фактур по краям могут иметь ограничивающие фаски или полоски шириной не менее 5 мм. Шероховатость фасок не должна превышать шероховатость поверхностей, смежных с лицевой поверхностью. По согласованию с потребителем допускаются другие виды фактур.
4.7 На лицевой поверхности пиленых (фрезерованных) изделий повреждения не допускаются.
4.8 На лицевой поверхности колотых изделий допускаются повреждения углов длиной по ребру не более 15 мм и числом не более 2 шт., сколы ребер по периметру изделий длиной не более 15 мм и числом не более 3 шт.
4.9 Отклонения от плоскостности на 1 м длины по периметру и диагоналям не должны превышать для изделий стойкими фактурами ±2 мм, с грубыми фактурами - ±5 мм.
4.10 Отклонения от плоскостности на 1 м длины по периметру и диагоналям не должны превышать для колотых изделий с тонкими фактурами ±3 мм, с грубыми фактурами - ±5 мм.
4.11 Поверхности стыкующихся изделий должны обрабатываться под фактуру с высотой неровностей рельефа не более 2 мм для изделий с тонкими фактурами и не более 5 мм - для изделий с грубыми фактурами.
4.12 Тыльная сторона всех изделий должна быть чистой (без следов загрязняющих пятен и ржавчины).
4.13 Архитектурно-строительные изделия не должны иметь трещин.
4.14 На лицевой стороне изделий допускаются полосы и прожилки, если они не снижают декоративности изделий.
4.15 Допускается армирование прямоплоскостных толстомерных и погонажных изделий водостойкими и морозостойкими, экологически безопасными консолидантами, стеклотканью, скобами из нержавеющей стали и т.п., если при этом не ухудшаются их декоративные и эксплуатационные свойства. Склеенные изделия должны состоять не более чем из двух частей.
4.16 Упаковка
Архитектурно-строительные изделия упаковывают. Между лицевыми поверхностями полированных изделий укладывают бумажные или деревянные прокладки. Из упакованных в ящики или ящичные поддоны прямоплоскостных толстомерных и объемно-профильных изделий могут быть сформированы транспортные пакеты.
4.17 Маркировка
На ящик или ящичный поддон наносят штамп отдела технического контроля и товарный знак предприятия-изготовителя или прикрепляют бирку со штампом отдела технического контроля или товарным знаком предприятия-изготовителя.
Транспортная маркировка - по ГОСТ 14192.
4.18 Требования к горным породам
4.18.1 Архитектурно-строительные изделия изготовляют из следующих видов горных пород:
- прямоплоскостные толстомерные и объемно-профильные изделия: из прочных изверженных горных пород (граниты, диориты, сиениты и т.п.), прочных метаморфических горных пород (мигматиты и кварциты); среднепрочных изверженных горных пород (габбро, диабазы, лабрадориты, порфириты и т.п.);
- погонажные изделия и в форме тел вращения: для наружного применения то же, что и для прямоплоскостных и объемно-профильных изделий; для внутреннего применения то же, что и для прямоплоскостных и объемно-профильных изделий, а также мраморы, мраморизованные известняки, доломиты, травертины, песчаники.
4.18.2 Архитектурно-строительные изделия должны изготовляться из горных пород, удовлетворяющих требованиям ГОСТ 9479.
4.18.3 Архитектурно-строительные изделия допускается изготовлять из горных пород с показателями физико-механических свойств, худшими, чем установленные ГОСТ 9479, при технико-экономическом обосновании долговечности изделий из них с учетом климатических условий строительства специализированными лабораториями после проведения соответствующих исследований.
5 Правила приемки
5.1 Архитектурно-строительные изделия должны быть приняты отделом технического контроля предприятия-изготовителя.
5.2 Изделия принимают партиями. Партией считают изделия одного типа и одной фактуры, изготовленные в течение 10 сут из блоков горных пород, добытых на одном и том же карьере или одной шахте.
5.3 Для проверки качества архитектурно-строительных изделий требованиям настоящего стандарта проводят приемочный контроль.
5.4 При приемочном контроле определяют:
- геометрические размеры и форму;
- фактуру лицевой поверхности;
- качество лицевой поверхности.
5.5 Приемку объемно-профильных изделий и изделий в форме тел вращения проводят поштучно, остальных видов изделий - методом выборочного контроля, при этом от каждой партии отбирают число изделий, указанное в таблице 6.
Таблица 6 - План выборочного контроля
|
Объем партии плит, шт. |
Объем выборки плит, шт. |
Приемочное число, шт. |
Браковочное число, шт. |
|
До 25 |
5 |
0 |
1 |
|
От 26 до 90 |
13 |
0 |
1 |
|
От 91 до 500 |
20 |
0 |
1 |
|
От 501 до 1200 |
32 |
0 |
1 |
|
От 1201 до 3200 |
50 |
1 |
2 |
|
От 3201 до 10000 |
80 |
2 |
3 |
|
От 10001 до 35000 |
125 |
3 |
4 |
|
Более 35000 |
200 |
4 |
5 |
5.6 Проверяемое изделие следует считать дефектным, если оно не удовлетворяет одному из требований настоящего стандарта.
5.7 Партию изделий принимают, если число дефектных изделий в выборке меньше или равно приемочному числу, и не принимают, если число дефектных изделий больше или равно браковочному числу. При этом объем партии изделий уменьшают на значение в процентах выявленного брака или в партию добавляют изделия без дефектов числом, равным числу выявленного процента брака, без увеличения объема партии.
5.8 Партия изделий, не принятая в результате выборочного контроля, может быть разделена на несколько групп (не менее 90 изделий в каждой группе), и для каждой группы изделий вновь проводят выборочный контроль. Группы изделий, не принятые в результате повторных проверок, принимают поштучно.
5.9 Каждая партия поставляемых изделий должна иметь документ о качестве, в котором указывают:
- наименование и адрес предприятия-изготовителя;
- номер и дату составления документа о качестве;
- дату отгрузки;
- номер партии;
- число изделий в партии и их размеры;
- горную породу, из которой изготовлены изделия, наименование месторождения (коммерческое название камня, страну - поставщика сырья);
- фактуру лицевой поверхности изделий;
- показатели физико-механических свойств горной породы, регламентируемые ГОСТ 9479;
- обозначение настоящего стандарта.
6 Методы контроля
6.1 Показатели физико-механических свойств горной породы изделий оценивают на основании документа о качестве по 5.9.
6.2 Для определения геометрических размеров, отклонений от плоскостности и качества лицевой поверхности применяют:
- металлическую линейку длиной 1 м по ГОСТ 8026, ГОСТ 427 и рулетку по ГОСТ 7502, обеспечивающие проведение измерений с погрешностью ±1 мм;
- металлический поверочный угольник 90° по ГОСТ 3749;
- набор щупов;
- измерительную лупу с микрометрической шкалой ЛИ-3-10x по ГОСТ 25706;
- электронный измеритель шероховатости (профилометр) серии ТР по ГОСТ 19300 или аналогичный. При отсутствии профилометра могут использоваться эталонные образцы камня с заданными фактурами;
- блескомер типа IG 330 (фирмы "Horibda", Япония) или аналогичный.
6.3 Длину и ширину изделий измеряют по двум противоположным ребрам лицевой поверхности, толщину - по двум диаметрально расположенным углам. Результат каждого измерения не должен превышать значений, установленных настоящим стандартом.
6.4 Отклонение от прямого угла изделий определяют по двум диагонально расположенным углам, измеряя щупом просвет между торцевой поверхностью изделия и стороной угольника; результат пересчитывают на 1 м длины и оценивают для каждого угла отдельно.
6.5 Для определения отклонения от плоскостности лицевой поверхности стальную линейку накладывают по периметру и диагоналям изделия и измеряют щупом просвет между поверхностью изделия и линейкой. Результатом измерения считают значение наибольшего просвета.
6.6 Для определения отклонения профиля криволинейной лицевой поверхности от заданного к лицевой поверхности прикладывают шаблон, измеряя щупом просвет между шаблоном и поверхностью изделия.
6.7 Качество лицевой поверхности лощеной и шлифованной фактур оценивают профилометром, качество полированной фактуры - блескомером в соответствии с инструкцией предприятия - изготовителя прибора. Допускается оценивать тонкие фактуры визуально сравнением с эталонами, поверхности которых оценены инструментальными методами.
7 Транспортирование и хранение
7.1 Изделия транспортируют автомобильным, железнодорожным и водным транспортом в соответствии с действующими на этих видах транспорта правилами погрузки, крепления и перевозки грузов, утвержденными в установленном порядке.
7.2 Тара должна быть приспособленной для механизированной погрузки и выгрузки изделий. При погрузке, выгрузке и транспортировании должны быть приняты меры для защиты изделия от повреждений и загрязнений.
7.3 Изделия из карбонатных пород хранят под навесом, изделия из других горных пород могут храниться на открытых спланированных площадках, обеспечивающих отвод воды и предохранение изделий от повреждений и загрязнений. При хранении на складах без тары изделия должны быть установлены на деревянных подставках. Между изделиями с полированной фактурой укладывают бумагу или деревянные прокладки.
____________________________________________________________________________________
УДК 691.21:006.354 МКС 91.100.15 Ж33
Ключевые слова: архитектурно-строительные изделия из природного камня, технические требования, правила приемки, методы контроля, маркировка, транспортирование и хранение
____________________________________________________________________________________
Электронный текст документа
подготовлен ЗАО "Кодекс" и сверен по:
официальное издание
М.: Стандартинформ, 2014

